Apartament o pow. 163,39mkw, 4 pokoje, balkon, Mokotów
Lokalizacja
Ten wyjątkowy apartament położony jest na pierwszym piętrze w sześciopiętrowej, prestiżowej Rezydencji Maltańskiej przy ulicy Jazgarzewskiej, w sercu zielonego, cichego Dolnego Mokotowa w Warszawie. Budynek apartamentowy, wybudowany został w 2007 roku, wyposażony jest w windę i objęty jest całodobowym monitoringiem oraz ochroną. Na parterze znajduje się recepcja, a dla mieszkańców dostępna jest siłownia, sauna oraz pokój rekreacyjny z bilardem i stołem do ping-ponga. Teren osiedla jest zamknięty i bezpieczny.
Tuż obok inwestycji znajduje się wejście do malowniczego Parku Sieleckiego, co zapewnia mieszkańcom codzienny kontakt z naturą. Lokalizacja apartamentu oferuje jednocześnie szybki dostęp do centrum miasta, zaledwie trzy minuty spacerem dzielą go od przystanku tramwajowego nowej linii, co czyni komunikację wyjątkowo wygodną i sprawną.
Apartament
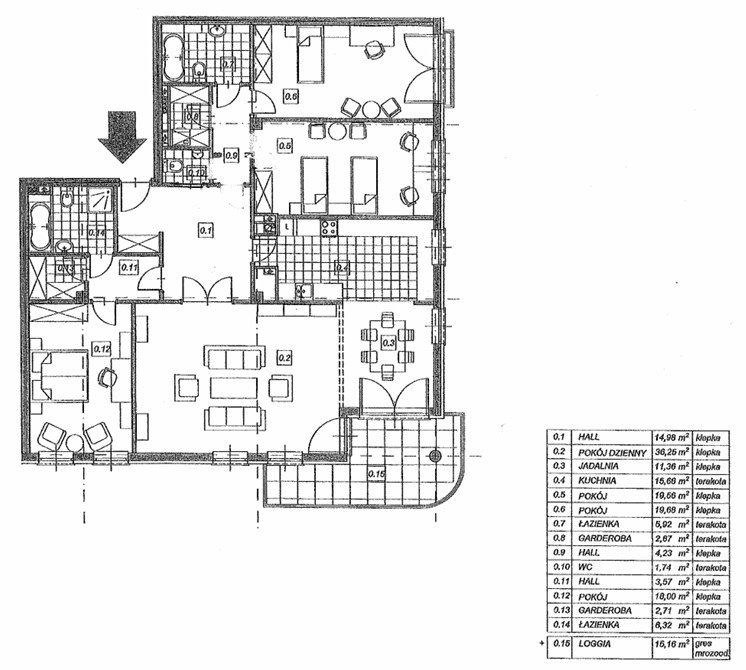
Apartament zachwyca przestronnością, dużymi oknami oraz wysokim standardem wykończenia. Mieszkanie składa się z czterech pokoi, w tym sypialni typu master z prywatną łazienką z wanną oraz oddzielną, funkcjonalną garderobą. Dwie kolejne przestronne sypialnie (jedna z podwójnym łóżkiem, druga z dwoma łóżkami pojedynczymi) zapewniają komfortową przestrzeń zarówno dla rodziny, jak i gości. Dodatkowym udogodnieniem są druga łazienka z prysznicem oraz osobna toaleta dla gości.
Centralnym punktem mieszkania jest jasny, przestronny salon z wyjściem na balkon, który stanowi idealne miejsce do wypoczynku. Kuchnia została zaprojektowana jako oddzielne, dobrze doświetlone pomieszczenie i jest w pełni wyposażona we wszystkie niezbędne sprzęty. Dodatkowym atutem mieszkania jest praktyczne pomieszczenie gospodarcze z pralką i dużą ilością miejsca do przechowywania.
Do apartamentu przynależą dwa miejsca postojowe w garażu podziemnym oraz komórka lokatorska, co dodatkowo podnosi komfort codziennego życia.
Serdecznie zapraszamy na prezentację nieruchomości!















