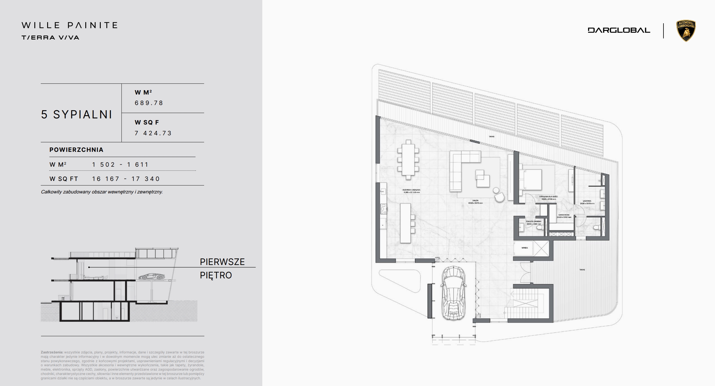
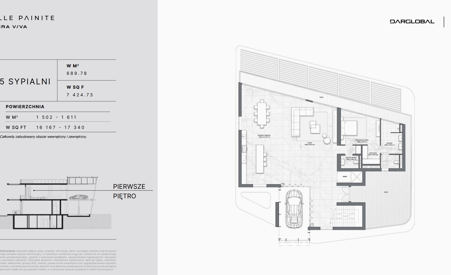
Ekskluzywne wille z 5 pokojami i windą samochodową w Costa del Sol
Lokalizacja
Wille położone są w regionie Costa del Sol, sercu Tierra Viva Benahavis. To ekskluzywne osiedle mieszkalne składa się z luksusowych willi, inspirowanych Automobili Lamborghini. Kompleks został zaprojektowany przez firmę DarGlobal – jest to jej debiut w Hiszpanii.
Wille
Wszystkie wille mają konstrukcję żelbetową. Ściany zewnętrzne są wykonane z podwójnej warstwy cegieł i posiadają izolację cieplną. W willach zamontowane są okna z podwójnymi szybami. Domy wyposażone są w instalację chłodząco-grzewczą, wyrównane i wypoziomowane przestrzenie zewnętrzne oraz wybrukowane alejki na podjeździe i parkingu. W każdej willi znajduje się wspaniały basen. Wszystkie tereny zewnętrzne mają twardą nawierzchnię.
Standard wykończenia:
- Wewnętrzna wina samochodowa
-Winda samochodowa o wymiarach 2,1 m-2,5 m x 5,3 m z ładownością wynoszącą 2700 kg
-Ściany z oszkleniem strukturalnym z wygrawerowanym wzorem Automobili Lamborghini DNA.
- Tynki wewnętrzne
-Pionowe i poziome wykończenia z użyciem wysokiej jakości farby emulsyjnej; kolor ścian i sufitu do ustalenia.
-Sufit podwieszany z gipsu do pomieszczeń suchych i wodoodporna płyta gipsowa do pomieszczeń wilgotnych
- Tynki zewnętrzne
-Wodoodporne otynkowanie z farbą emulsyjną najlepszych marek. Kolor do ustalenia.
-Okładzina kamienna najlepszej jakości na ścianach zewnętrznych (jeśli dotyczy).
- Posadzka i płytki
-Najlepszej jakości płytki marmurowe o dużym formacie do kuchni, salonu, jadalni, przedpokoju i części wspólnych na parterze.
-Płytki porcelanowe o dużym formacie od najlepszych marek do łazienek, pomieszczeń wilgotnych, sypialni i części gospodarczych.
-Zapewnione są takie same płytki w wersji antypoślizgowej do części zewnętrznych.
- Łazienka – urządzenia sanitarne
-Podwieszona toaleta podtynkowa z mechanizmem cichego zamykania
-Blat o twardej powierzchni do dodatkowych łazienek i porcelana do głównej łazienki. W największej łazience podwójna umywalka z drewnianą, lakierowaną szafką, kolor do ustalenia.
-Baterie termostatyczne do prysznica z wbudowaną deszczownicą od najlepszych marek.
-Lustro z podświetleniem tylnym LED i systemem przeciwmgielnym do łazienek.
-Szklana ściana prysznicowa.
-W pralni pralka i suszarka bębnowa
- Stolarka wewnętrzna
-Bezpieczne drzwi wejściowe Pivot, fornirowane drewnem.
-Drzwi wewnętrzne i drzwi szaf wykończone drewnem, z ukrytymi zawiasami.
-Wnętrze szaf na wymiar zgodny z opisem projektu.
- Stolarka zewnętrzna
-Systemy profili aluminiowych, kolor do ustalenia, z przekładkami do mostków cieplnych
-Bezpieczne podwójne szyby z ochroną przed promieniami słonecznymi oraz ochroną cieplną, zgodnie z usytuowaniem willi.
- Klimatyzacja i ogrzewanie
-Urządzenie klimatyzacyjne (ogrzewanie i chłodzenie) do każdego pokoju.
-Ogrzewanie podłogowe na parterze i pierwszym piętrze, elektryczne w łazienkach, wodne w reszcie pomieszczeń.
- Elektryka, telekomunikacja, automatyka domowa
-Wysokiej jakości mechanizmy od najlepszych marek.
-Oświetlenie LED z regulacją natężenia (z funkcją przyciemniania) w salonie, kuchni i sypialniach.
-Gniazdka z funkcją USD w sypialniach i kuchni.
-Kontrola rozwiązań automatyki domowej: systemu grzewczo-chłodzącego, systemu oświetlenia, bramy.
Ceny nieruchomości zaczynają się od 4.500.000 EUR.
Zapraszamy na prezentację tej nieruchomości.



















